
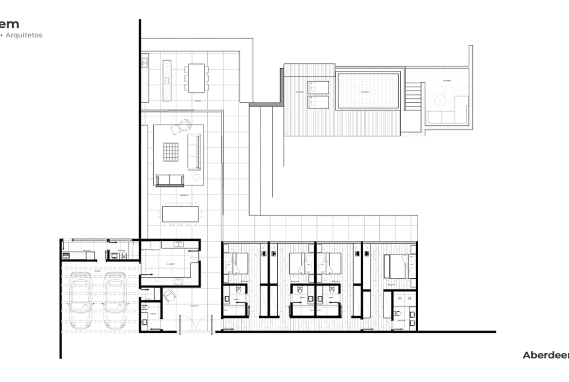
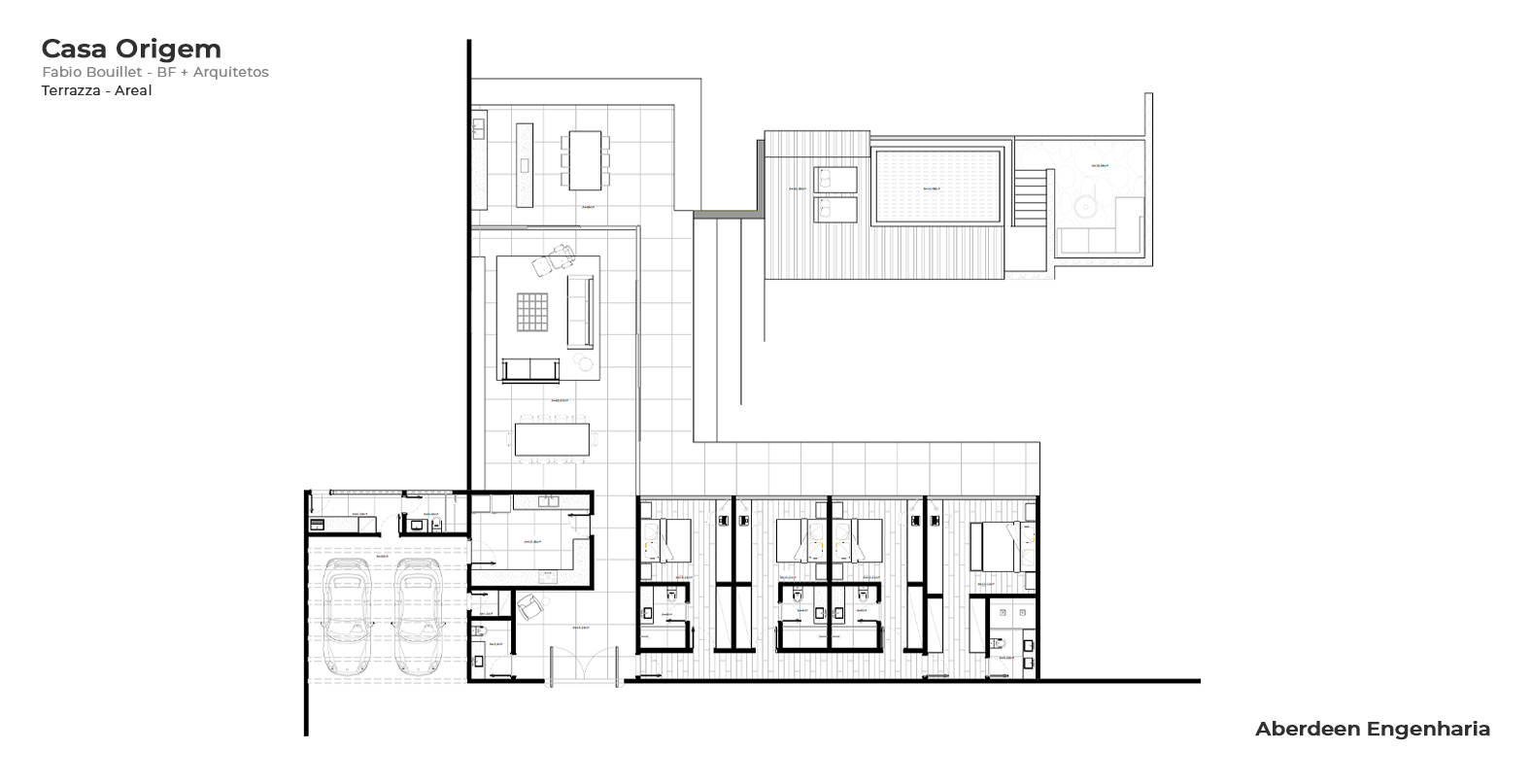
A equipe da BF+ Arquitetos, liderada por Fabio Bouillet, idealizou a Casa Origem, antes de tudo, como um ponto de retorno ao que é essencial. De fato, quem busca comprar uma casa térrea de luxo em Areal encontrará neste projeto, vendido na planta, o equilíbrio perfeito entre sofisticação e natureza. Com 437 m² de área construída em um terreno privativo de mais de 3.100 m², esta é, certamente, a oportunidade de firmar raízes em um lugar de paz e beleza singular.
O projeto concebe esta residência para celebrar a vida ao ar livre. Por exemplo, um amplo jardim com espaço para trilhas convida à exploração e ao contato direto com a flora local. Além disso, um generoso deck de madeira com piscina se torna o centro das atividades diurnas. Como resultado, a casa oferece um verdadeiro parque particular para toda a família.
Agora, vamos explorar os espaços pensados para o convívio e o bem-estar.
O coração da casa é, sem dúvida, a área social, onde a sala de estar e a de jantar se unem de forma orgânica e se abrem para a paisagem. Adicionalmente, a varanda com sua área gourmet funciona como uma extensão natural deste espaço, perfeita para refeições ao ar livre. Dessa maneira, a arquitetura incentiva a união e a celebração.
A esfera íntima da casa acolhe quatro suítes completas, além de um banheiro social. Em particular, os arquitetos desenharam cada aposento para ser um refúgio de paz, onde a vista para o verde embala o descanso. Assim, a privacidade e o conforto de cada morador são prioridade máxima.
Naturalmente, as opções de lazer são um convite para criar memórias. O deck com piscina é ideal para os dias de sol em família. Contudo, ao anoitecer, o fogo de chão se torna o ponto de encontro, um lugar para compartilhar histórias e aproveitar o clima ameno da serra, reforçando a vocação da casa como um ponto de origem para novas tradições.
Esta é a sua chance de investir em um imóvel que é mais do que uma casa: é um convite para uma vida mais plena e conectada com suas origens. O valor de investimento para este projeto na planta é de R$ 4.626.680,00.
Portanto, entre em contato para receber o memorial descritivo completo e agendar uma apresentação detalhada sobre a Casa Origem.
Comparar listas
CompararVocê não pode copiar conteúdo desta página